致尊敬的客户:
  根据用户反映,本公司经市场调查发现,近期有不法公司及私人机构假冒、冒充本公司欺骗客户,利用不正当手段使用本公司设计案例,模仿和抄袭本公司网站,严重损害了广大用户的利益和本公司的良好声誉。在此,本公司郑重声明:请相关侵权者立即停止其侵权行为,本公司将对上述侵权行为通过法律的手段解决,维护权利。并提醒客户不要轻信谗言,蒙受损失。 北京古韵轩中式设计机构全国客户统一服务热线:400-012-8009 010-57218009 官方网址: http//:www.gyxuan.com http://www.gyxuan.org
目前古韵轩在全国设立的设计中心为: 古韵轩北京中式设计总部  华北设计中心太原分公司  华东设计中心苏州分公司  华南设计中心宁德分公司

体物之工,贵在精微|古韵轩河北廊坊徽派别墅设计

您当前位置: > 中式家装 > 别墅 >
文章由古韵轩中式设计网站www.gyxuan.com)编辑整理,如果您赞同我们的观点或者喜欢我们的文章,转载时请注明。

  项目类型:别墅

  设计风格:徽派

  本案地址:河北廊坊

  本案面积:1500㎡

  主案设计:冯啸

  设计团队:杨帆,田大鹏,范秀莹,高海科,周洁,闫亚峰

  中式,考验设计师对文化的解读和视野的宽度。

  徽派,考验设计师对气氛的把握和色调的掌控。

  设计师以黑、白、灰为主基调,营造知觉魅力的同时,又强化了传统符号在空间内的印象。通过线条,造型以及不同材质将“徽派韵味”悉数吐纳。

  入户门厅

  一层会客厅

  一层大餐厅

  一层老人房

  一层老人房卫生间

  一层公共卫生间

  二层大卧室

  二层大卧室卫生间

  二层小卧室

  三层主卧起居室

  三层主卧室

  三层主卧室卫生间

  三层书房

  四层禅修室

  四层佛堂

  四层露台角度一

  四层露台角度二

  四层露台角度三

  地下室电梯厅

  地下室休闲厅

  地下室温泉厅

  作为设计方,我们很荣幸,再次得到业主的信任、支持与肯定。面对项目,设计师严格把握,甚至苛刻到细节呈现。正如艾特略在《玄学派诗人》中所说:“我们的文明、发展涵容着巨大的多样性和复杂性,这些,终将作用于精细的感受力!”——体物之工,贵在精微。

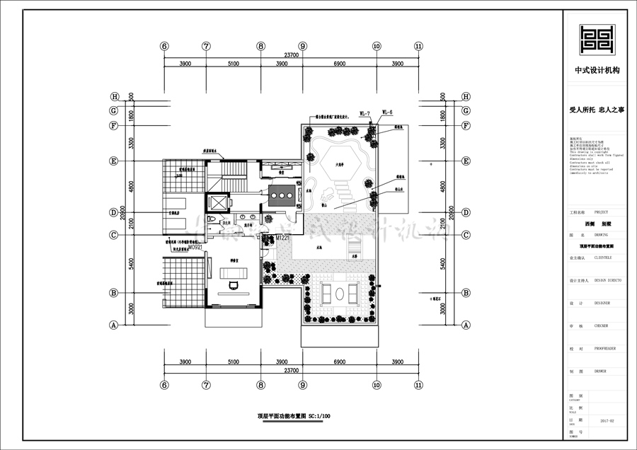
  附本案平面功能布局图

  一层平面图

  二层平面图

  三层平面图

  顶层平面图

  地下一层平面图

上一篇:古韵轩江苏中式别墅设计|碧桂园解读传统中式 下一篇:恭贺王总入住新居|古韵轩天津新中式别墅全案项目竣工
古韵轩设计收费标准 我要设计咨询 我要预约设计
别墅古典中式装修
别墅古典中式装修案例
别墅中式装修,品味古典文化下的古朴大气生活
别墅中式装修,品味古典文化
文人墨客的足下宝殿——现代中式别墅装修
文人墨客宝殿-现代中式别墅装修
长沙别墅中式装修体验古典奢华文化气息
别墅中式装修体验古典奢华文化
关于中式装修的相关文章
别墅中式装修 古韵轩山西古典中式别墅设计
品质生活丨新中式别墅设计案例
清新·明快丨新中式别墅设计案例
静雅·怡居丨新中式别墅设计案例
写意闲适,如诗如画|古韵轩北京房山现代中式别墅设计
厚德载物,富贵花开|古韵轩湖北十堰古典中式别墅设计
恭贺王总入住新居|古韵轩天津新中式别墅全案项目竣工
欢迎关注微信公众号:bjgyxuan(古韵轩中式装修)
华中会馆案例:4000128009 010-57218009
古韵轩完成各地中式装修中式设计案例  
古韵轩已完成各地中式设计案例 | A 鞍山| B 北京 包头 保定 北海 蚌埠 | C 重庆 成都 常州 长春 长沙 沧州 | D 大连 东莞 大庆 东营 | E 鄂尔多斯 | F 佛山 福州 涪陵 | G 广州 贵阳 桂林 赣州 | H 杭州 哈尔滨 海南 邯郸 合肥 惠州 呼和浩特 衡水 湖州 合川 | J 济南 嘉兴 江门 九江 江阴 | K 昆明 昆山 | L 兰州 连云港 洛阳 临沂 柳州 乐山 廊坊 | M 绵阳 马鞍山| N 南京 南昌 南宁 南通 宁波 | Q 青岛 泉州 秦皇岛 綦江 | S 上海 深圳 苏州 绍兴 沈阳 石家庄 三亚 | T 天津 太原 泰州 唐山 | W 武汉 威海 潍坊 无锡 吴江 芜湖 万州 | X 西安 西宁 厦门 徐州 | Y 烟台 扬州 宜昌 银川 永川 运城 营口 | Z 镇江 郑州 中山 珠海 淄博 舟山 | 其他 香港 台湾 更多>>
 
 
网站地图 精品住宅 别墅豪宅 茶楼茶馆 酒店宾馆 展厅店面 设计收费标准 设计预约
古韵轩北京中式设计机构总部地址:北京市昌平区珠江摩尔国际中心3号楼1单元313室
古韵轩华东设计中心地址:苏州市姑苏区广济南路19号,永捷峰汇大厦23层2301
古韵轩华南设计中心地址:宁德市东侨区金港名都B区1幢302
古韵轩华北设计中心地址:太原市小店区晋阳街联合大厦A座2单元802号
北京古韵轩中式设计机构全国统一设计咨询热线:400-012-8009 010-57218009
北京古韵轩装饰设计有限公司版权所有 Copyright 2009-2011 gyxuan.com, All rights reserved E-mail:gyxuanvip@163.com
中式装修,中式设计,中式风格-北京市古韵轩中式装修设计机构 京ICP备16055294号-2