项目类型:四合院 
	  占地面积:1518㎡ 
	  设计风格:传统京派 
	  项目地点:河北沧州 
	  主案设计:胡国威,闫亚峰 
	  设计团队:建筑设计项目二组 
	  四合院的构成有它的独特之处,它的院落宽绰疏朗,四面房屋各自独立,又有游廊连接彼此,起居十分方便。围合式建筑具有很强的私密性,关起门来自成天地。 
	  本案为传统两进院,坐北朝南,于正北偏东8度。共分前院和后院,后院又叫做内宅。前院由门楼、倒座房组成。连接前后院的为垂花门。后院由东西厢房、正房、游廊组成,四面房门都开向院落,预示一家人和美相亲,其乐融融。 
	  
	  彩色平面图 
	 
	  
	  建筑鸟瞰图一 
	 
	  
	  建筑鸟瞰图二 
	  
	  本案设计入户门采用广亮大门。广亮大门建在高出胡同几个台阶的台基上,它的屋顶标高明显高于倒座房,进深的尺度也略大于与其紧邻的其他房间。这使得整个广亮大门在建筑中非常突出醒目。另外广亮大门的门扉设在屋宇脊檩下的中柱位置,把门庭空间等分。一半在内,一半在外,所以门扉以外的入口区域相对宽大敞亮。 
	  
	  
	  入户门 
	 
	  
	  正房 
	 
	  
	  东厢房 
	  
	  四合院好在其合,贵在其敞。合便于保存自我的天地,敞则更容易观赏广阔的空间。本案占地面积为1518㎡,建筑面积为952㎡(含负一层),庭院面积为659㎡,整体设计方案合理、考究、宜居。 
	  
	  目前本案正在紧锣密鼓的施工中,古韵轩始终遵循【设计为纲,落地为实】的信念,不断努力着。 
	  
	  
	  施工进度实景照片一 
	 
	  
	  施工进度实景照片二 
	 
	  
	  设计师项目跟进指导一 
	 
	  
	  设计师项目跟进指导二 
	  
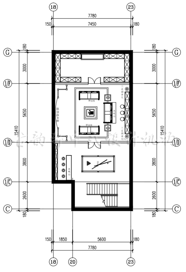
	  附本案平面功能布局图 
	 
	  
	  平面布局图一 
	 
	  
	  平面布局图二 
	  
	  敬请期待本案室内设计方案...... 
 |