装修类型:公装
项目类型:茶会所
设计风格:新中式
本案地址:湖北武汉
本案面积:510㎡
主案设计:闫亚峰
设计团队:胡国威 高海科
“简单、不繁琐,主要靠家具和装饰品点缀空间。”是客户对于本案设计的要求,经过设计师与客户的深入沟通,最终将设计风格确定为新中式。
新中式风格在设计上延续了明清时期家居配饰理念,提炼了其中经典元素并加以简化和丰富,在形态上更加简洁清秀,同时空间配色也更为轻松自然,备受广大业主喜爱。

大门
大门两旁翠竹掩映,厚重的青砖围绕木门成框,沉淀出历史的韵味。

接待厅
本案并非流动会所,客源基本是业主的朋友,所以接待厅没有设置专门的收银区,只摆放了供人休息喝茶的茶海,方便等候包房的客人。设计师采用借景的手法,在墙面上做了造型和修整。透过圆形镂空墙,可直接欣赏外面陈设的太湖石。正所谓眼前茶意香浓,外面绿意悠悠。

包间
设计师结合地方特点,包间内除了设置品茶区,还增加了自动麻将桌。考虑到客人吸烟问题,在麻将桌上方设置吸烟灯,不仅增加了空间亮度,也净化了空气。电视背景墙,线条简单,造型对称。另一墙面饰以水墨感的徽派马头墙壁画,美观的同时又起到延展空间的作用。

楼梯间
楼梯间下方设置景观装饰,发财树、粉花、白色鹅卵石,使得整个空间独具观赏性。靠墙处为定制博古架,摆放业主淘来的各种物品。

二层棋牌室
二层棋牌室配置与包间相差无几,主要功能仍是品茶和娱乐。

二层阳光房
阳光房整体设计感觉偏休闲,无论是顶面柔软的红色纱幔,还是精心挑选的绿植,或是略显古朴的茶桌茶具,都透漏出慵懒放松的气息。品茶、笔会、赏花,别有一番趣味。

庭院1

庭院2
庭院设计兼具了实用性和美观性。葡萄架主要功能除休息乘凉外,还可停放车辆。对面设置水幕墙,引动下面池塘的水成为活水。木质亭台,提供另一处休息活动区域。
TIPS:
本案以大量绿植为景,是新中式风格中不可或缺的元素,除了绿萝、凤尾竹、滴水观音等观叶植物,树雕、盆景也是不错的选择。
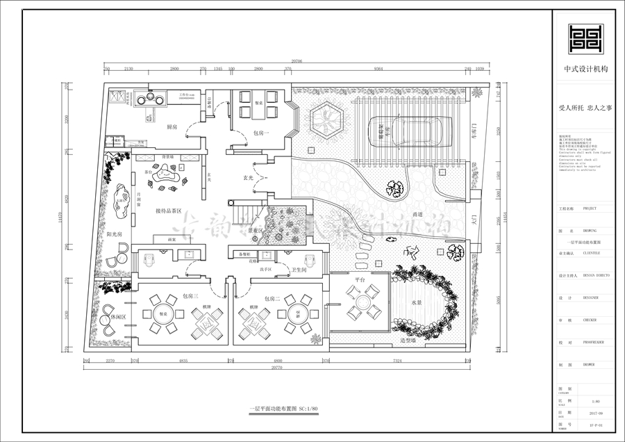
附本案平面设计图

一层平面布置图

二层平面布置图

三层平面布置图
|